Argentinierstraße 29, Top 17, 1040 Wien

Stellplatz inklusive | Argentinierstraße 29 | 2 Zimmer-Wohnung mit Balkon | 3.OG mit Lift

Moderne Neubauwohnung im Toscanahof – urban wohnen, grün leben

Diese moderne Neubauwohnung befindet sich in einer großzügigen, rund 8.000 m² großen Gartenanlage im Toscanahof. Das Wohnprojekt, entworfen vom Architekten Gustav Peichl, verbindet ruhiges Wohnen im Grünen mit einer zentralen Lage in der Stadt.

Highlights der Wohnung:

  • Helles Wohnzimmer mit offener Küche
  • Großzügiger, gartenseitiger 7m² Balkon
  • Ruhiges Schlafzimmer
  • Modernes Badezimmer mit Dusche und WC
  • Praktischer Abstellraum
  • Durchdachte Raumaufteilung für ein komfortables Wohnen

  • Objektnummer eugen-26-13095/1
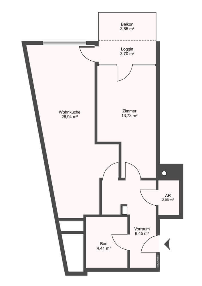
  • Wohnfläche 55,59 m²
  • Balkon 1 (3,85 m²)
  • Loggia 1 (3,70 m²)
  • Stockwerk 3. OG
  • Anbindung
  • Zimmer 2
  • Badezimmer 1
  • WC 1
  • HWB 36,60 kWh/m²
  • Baujahr 2004
  • Heizung Zentralheizung
  • Befeuerung Gas
  • Stellplätze 1
  • Aufzug ja
  • Barrierefrei nein
  • Möblierung Küche vorhanden
  • Außenfläche 6 m²
  • Gesamtmiete € 1.620,49
  • Hauptmiete (inkl. USt) € 1.513,67
  • Betriebskosten (inkl. USt) € 106,82
  • Kaution 3 BMM
  • Mindest-Haushaltseinkommen (netto) € 4.051,23
  • Verfügbar ab sofort
  • Mietdauer 5 Jahre
  • Provision Provisionsfrei
  • Aufzug
  • Keller
  • Fahrradraum
  • Kinderwagen­abstellraum
  • Abstellraum

Der weitläufige, ruhige Gartenbereich steht allen Bewohner:innen des Hauses zur gemeinsamen Nutzung offen und schafft eine grüne Rückzugsmöglichkeit mitten im urbanen Umfeld.

Die monatlichen Heizkosten belaufen sich auf € 65,39 zuzüglich 20 % MwSt.

Ein fixer Garagenstellplatz ist der Wohnung zugeordnet und bereits in der Gesamtmiete enthalten; bei Bedarf kann dieser unkompliziert weitergegeben werden.

Die Argentinierstraße zeichnet sich durch eine ausgezeichnete Infrastruktur aus. In unmittelbarer Nähe befinden sich zahlreiche Restaurants, vielfältige Einkaufsmöglichkeiten und Anbindungen an den öffentlichen Verkehr, sodass alles bequem zu Fuß erreichbar ist.

Die Anbindung an den öffentlichen Verkehr ist hervorragend: Die U-Bahnlinien U1 (Station Taubstummengasse), U2 und U4 (Station Karlsplatz) sind leicht erreichbar. Zusätzlich verkehren die Buslinie 13A sowie die Straßenbahnlinien D und 71 in der Nähe der Station Schwarzenbergplatz.

eugen!´s tip:
Backyard Boxing Vienna ist ein dynamisches Boxstudio, das Training für alle Leistungsstufen anbietet – vom Einsteiger bis zum Profi. Hier stehen Technik, Fitness und Kraftaufbau im Mittelpunkt, kombiniert mit einer motivierenden und persönlichen Trainingsatmosphäre.

Lage & Standort

Argentinierstraße 29, 1040 Wien

Auf Google Maps ansehen

Noch offene Fragen? eugen! ist da, um sie zu beantworten! Wenn du deine Frage hier oder bei unseren allgemeinen FAQ nicht findest, schreib uns an!

Das geht ganz einfach über unser Online-Terminbuchungstool. Den Link dazu findest du nach Anfrage direkt in deinem Exposé. Wähle dir aus den verfügbaren Terminfenstern den für dich passenden Slot aus. Besichtigungstermin vergessen unmöglich – Eugen’s Reminder erinnert euch daran!

Nach deiner Besichtigung, erhältst du eine persönliche Benachrichtigung und hast die Möglichkeit dein verbindliches Interesse zu zeigen. Damit wirst du automatisch zur Online-Bonitätsprüfung weitergeleitet. Nach Zustimmung der Vermieterin / des Vermieters unterschreiben beide Parteien den Mietvertrag elektronisch.