Leopoldauer Straße 72, Top 89, 1210 Wien, Floridsdorf
1. DG | 4 Zimmer | 37m² Terrasse | LEO am Park
Beschreibung
Entdecke eine breite Auswahl von 1- bis 4-Zimmerwohnungen, die eine Fläche von großzügigen 40 bis 82 m² abdecken. Das Gebäude hat die begehrte ÖGNI-Zertifizierung in Gold erhalten und ist zudem stolz darauf, als erstes Wohngebäude in Österreich die WiredScore-Zertifizierung in Silber vorweisen zu können.
Highlights:
- 1. DG mit 37m² Terrasse
- 4 Zimmer
- Badezimmer mit Badewanne und Waschmaschinenanschluss
- WC separat
- Ideale öffentliche Verkehrsanbindung - Nahe Floridsdorf Bahnhof
- Wohnungen verfügen über Garten, Loggia, Balkon oder Terrasse
- 68 PKW-Stellplätze auch mit E-Ladesäulen
- Gemeinschaftsterrasse am Dach
- Objektnummer eugen-24-11865/44
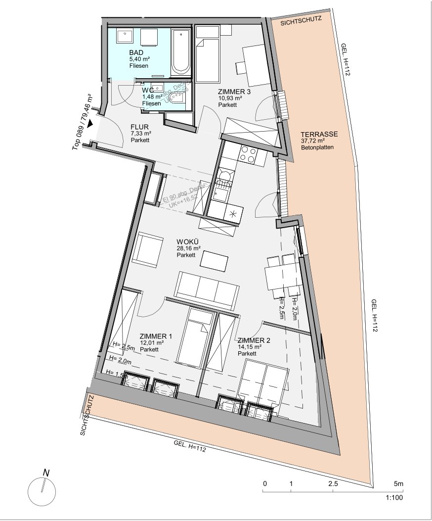
- Wohnfläche 79,46 m²
- Terrasse 1 (37,72 m²)
- Stockwerk 1. DG
- Anbindung SBahn, REX, U6, 31, 30, 26, 25, 28A, 29A, 33A
- Zimmer 4
- Badezimmer 1
- WC 1
- HWB 23,70 kWh/m²
- Energieklasse A
- Baujahr 2021
- Heizung Zentralheizung
- Befeuerung Gas
- Stellplätze 68
- Aufzug ja
- Barrierefrei nein
- Möbliert Küche
- Außenfläche 37 m²
- Gesamtmiete € 1.599,00
- Hauptmiete (inkl. USt) € 1.372,92
- Betriebskosten (inkl. USt) € 226,08
- Kaution 3 BMM
- Mindest-Haushaltseinkommen (netto) € 3.997,50
- Verfügbar ab sofort
- Mietdauer 5 Jahre
- Provision Provisionsfrei
Besonderheiten
- Aufzug
- Keller
- Fahrradraum
- Kinderwagenabstellraum
- Gemeinschaftsterrasse
Jede Wohnung im LEO am Park kommt mit einer hochwertigen Einbauküche, die nicht nur funktional, sondern auch stilvoll ist. Die Küche ist mit einem Geschirrspüler, Kühlschrank, Tiefkühlfach, Ofen und E-Herd ausgestattet. Das Badezimmer und WC sind mit hochwertigen Fliesen ausgestattet. Der Wohnbereich präsentiert sich mit edlem Parkett, das eine warme Atmosphäre schafft.
Jede Wohnung verfügt über einen eigenen Außenbereich. Ob Balkon, Terrasse, Loggia oder Garten, hier hast du deinen privaten Raum im Freien, um die frische Luft und die Umgebung in vollen Zügen zu erleben.
Für zusätzlichen Komfort sorgt die Fußbodenheizung, die über ein Raumthermostat reguliert wird und eine gleichmäßige Wohlfühltemperatur in der Wohnung schafft.
Außerdem ist das Wohngebäude mit einem Lift ausgestattet. Jede Wohnung verfügt über einen eigenen Kellerabteil.
Stromkosten werden von der Hausverwaltung über Sturm Energie organisiert.
Auch die Heizkosten werden zentral über die Hausverwaltung abgerechnet und verbrauchsabhängig berechnet.
Die angegebenen Mietkosten verstehen sich exklusive Strom- und Heizkosten.
Ein Tiefgaragenstellplatz für einen PKW kann monatlich für € 116,40 inklusive USt. und Betriebskosten angemietet werden, während ein Motorradabstellplatz monatlich für € 50,40 inklusive USt. und Betriebskosten zur Verfügung steht.
Als Servicepauschale verlangt die Hausverwaltung einmalig € 240,- brutto.
€ 1.599,00 pro Monat
Besichtigung buchenTeile diese Wohnung mit deinen Freund*innen:
Downloads
Lage
Das Wohnhaus liegt nur einen Katzensprung vom Floridsdorfer Bahnhof entfernt, der nicht nur unzählige Einkaufsmöglichkeiten bereithält, sondern auch eine ideale Verkehrsanbindung bietet: U6, S-Bahnen sowie Straßenbahnen die dich direkt in Stadt führen.
Für Shopping-Enthusiasten bietet das Shopping Center Nord (SCN) ein einzigartiges Einkaufserlebnis, ergänzt durch ein Kino und ein Fitnesscenter – alles direkt in Ihrer Nähe. Die unmittelbare Umgebung des Wohngebäudes bietet zudem zahlreiche weitere Einkaufsmöglichkeiten, die Ihren Bedarf decken. In unmittelbarer Nähe befindet sich das Krankenhaus Nord.
Neben der Infrastruktur kannst du von der Nähe zur Alten Donau profitieren. Diese malerische Umgebung lädt zu erholsamen Spaziergängen und Freizeitaktivitäten ein. Genieße die Vorzüge eines städtischen Lebensstils gepaart mit der natürlichen Ruhe entlang der Alten Donau.
eugen!'s Grätzltipp: Willkommen im Strandgasthaus Birner, einem einzigartigen Ort direkt an der Alten Donau. Im Sommer bietet das idyllische Ambiente mit Weinblättern über dem Kopf und Blick auf die Donau österreichische Köstlichkeiten. Ein Bootsverleih ermöglicht nach dem Essen eine entspannte Fahrt auf dem Wasser. An kalten Tagen verzaubert das historische Gasthaus seit 1875 mit Altwiener Charme. Ein Ort für kulinarischen Genuss und besondere Momente.
LEO am Park - Nachhaltiger Neubau Nahe Floridsdorf Bahnhof
Entdecke eine breite Auswahl von 1- bis 4-Zimmerwohnungen, die eine Fläche von großzügigen 40 bis 82 m² abdecken. Das Gebäude hat die begehrte ÖGNI-Zertifizierung in Gold erhalten und ist zudem stolz darauf, als erstes Wohngebäude in Österreich die WiredScore-Zertifizierung in Silber vorweisen zu können. Highlights: - Ideale öffentliche Verkehrsanbindung - Nahe Floridsdorf Bahnhof - Wohnungen verfügen über Garten, Loggia, Balkon oder Terrasse - 68 PKW-Stellplätze auch mit E-Ladesäulen - Gemeinschaftsterrasse am Dach
- Baujahr 2021
- Wohnungen 113
- Ort 1210 Wien, Floridsdorf
Häufig gestellte Fragen
Noch offene Fragen? eugen! ist da, um sie zu beantworten! Wenn du deine Frage hier oder bei unseren allgemeinen FAQ nicht findest, schreib uns an!
Das geht ganz einfach über unser Online-Terminbuchungstool. Den Link dazu findest du nach Anfrage direkt in deinem Exposé. Wähle dir aus den verfügbaren Terminfenstern den für dich passenden Slot aus. Besichtigungstermin vergessen unmöglich – Eugen’s Reminder erinnert euch daran!
Nach deiner Besichtigung, erhältst du eine persönliche Benachrichtigung und hast die Möglichkeit dein verbindliches Interesse zu zeigen. Damit wirst du automatisch zur Online-Bonitätsprüfung weitergeleitet. Nach Zustimmung der Vermieterin / des Vermieters unterschreiben beide Parteien den Mietvertrag elektronisch.