Friedrichstraße 4, Top 1.01, 4040 Linz
2 Zimmer-Wohnung mit Innenhof Terrasse | Erdgeschoss | Linz-Urfahr
Beschreibung
Die zentral gelegene Friedrichstraße 4 bietet modernes Wohnen in clever geplanten Stadt-Apartments. Die 151 Einheiten verteilen sich auf vier Stiegen und bieten dank Balkon oder Terrasse mit Garten in fast allen Wohnungen ein helles, freundliches Wohnambiente. Das 1995 errichtete Gebäude wurde 2020 umfassend saniert und erfüllt modernste Wohnstandards.
Nur wenige Gehminuten entfernt liegt das Donau-Ufer – ideal zum Entspannen, Joggen oder Naturgenießen. Auch die Innenstadt, Universitäten, kulturelle Hotspots und öffentliche Verkehrsmittel sind gemütlich zu Fuß erreichbar. Perfekt für alle, die ruhig und dennoch mitten im Geschehen zuhause sein wollen!
Highlights:
- 2 Zimmer-Wohnung
- Erdgeschoss mit privater Terrassenfläche
- Fenster mit Rolläden
- Kühlschrank in der Wohnung
- Lift und Waschküche im Haus
- Abstellmöglichkeiten für Dein Fahrrad im Innenhof
- Ready to connect – Kabel-TV & A1 in jeder Wohnung
- Kellerabteile inklusive
- Tiefgarage mit 62 PKW-Stellplätzen (Stapelparker)
- Zentrale, beliebte Lage – Innenstadt, Natur und Kultur direkt vor der Tür
- Objektnummer eugen-25-12683/35
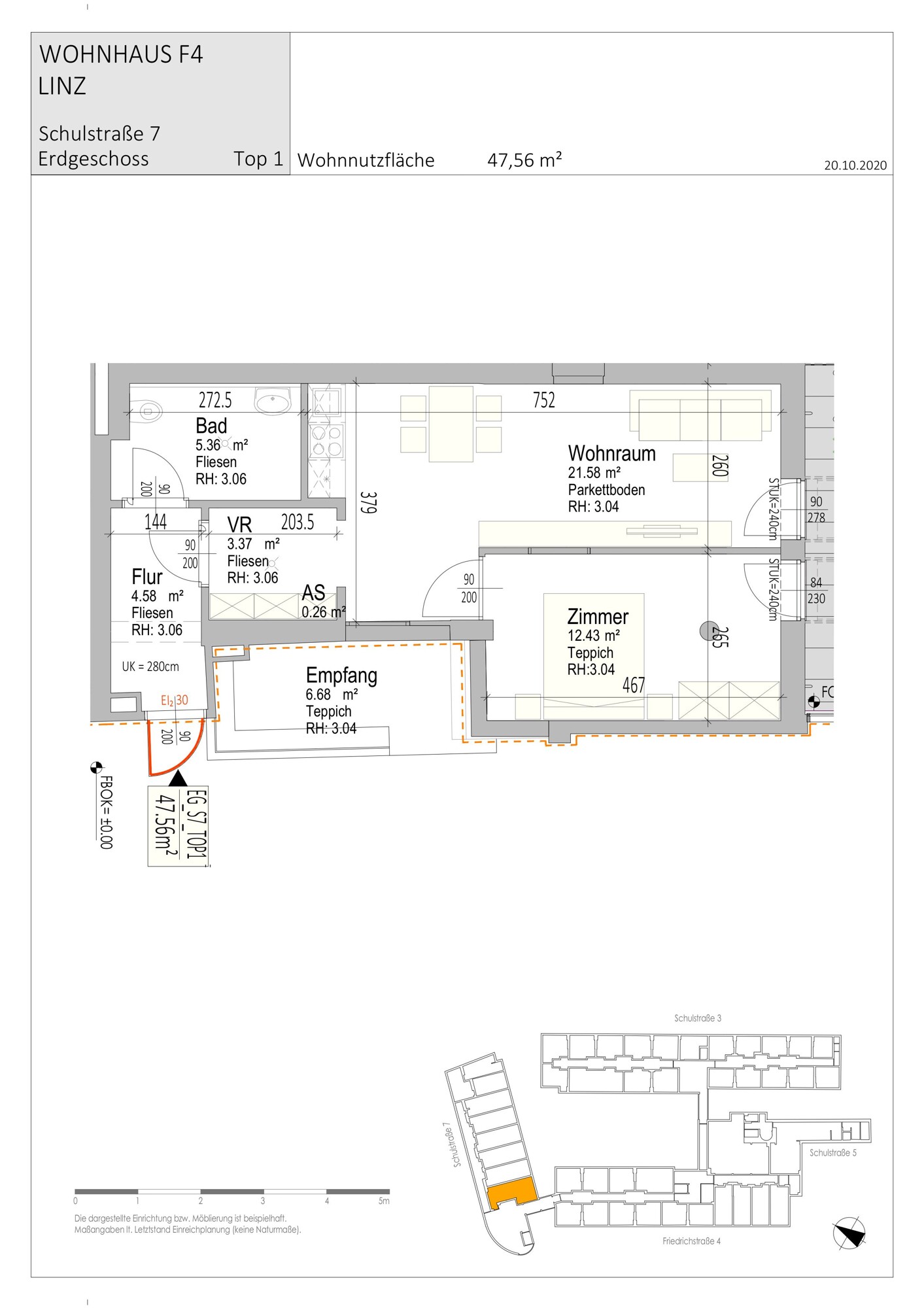
- Wohnfläche 47,56 m²
- Stockwerk EG
- Anbindung Straßenbahn 1, 2, 3, 4, 50 | Bus 33A, 38, N82 | Linz Urfahr Bahnhof
- Zimmer 2
- Badezimmer 1
- WC 1
- HWB 51,10 kWh/m²
- Energieklasse C
- Baujahr 1995
- Heizung Fernwärme
- Befeuerung Fernwärme
- Stellplätze 62
- Aufzug ja
- Möblierung Küche vorhanden
- Außenfläche 0,00 m²
- Gesamtmiete € 822,22
- Hauptmiete (inkl. USt) € 644,79
- Betriebskosten (inkl. USt) € 177,43
- Kaution 3 BMM
- Mindest-Haushaltseinkommen (netto) € 2.055,55
- Verfügbar ab sofort
- Mietdauer 5 Jahre
- Provision Provisionsfrei
Besonderheiten
- Keller
- Fahrradraum
- Gemeinschaftsgarten
- Aufzug
- Waschküche
- Kinderwagenabstellraum
In der Friedrichstraße 4 findest du folgenden Wohnungsmix:
- Micro-Apartments bis 30 m²
- Kompaktwohnungen mit 30–40 m²
- Komforteinheiten ab 40 m²
Die Wohnungen überzeugen durch einen sehr guten und modernen Zustand. Die Wohnräume sind mit Eichen-Echtholzparkett ausgestattet und sorgen für eine warme, wohnliche Atmosphäre. In den Nassräumen wurde ein zeitloser Fliesenbelag aus beige-grauem Feinsteinzeug verlegt, der sowohl ästhetisch als auch pflegeleicht ist. In den Stiegen 2, 3 und 4 sind alle Dachfenster mit elektrisch bedienbaren Sonnenschutzrollläden versehen, die einen effektiven Schutz vor Sonne und Hitze bieten.
Fast alle Küchen sind funktional ausgestattet und verfügen über ein Cerankochfeld, einen Backofen, eine Geschirrspülmaschine sowie einen Kühlschrank mit integriertem Tiefkühlfach. In kleineren Wohnungen unter 30 m² ist die Ausstattung teilweise reduziert. In dieser Wohneinheit gibt es keinen Geschirrspüler, keinen Ofen.
Die Waschküche befindet sich im Haus. In der Wohnung selbst gibt es keinen Waschmaschinenanschluss.
Allen Bewohner*innen stehen eine allgemeine Waschküche, viele Fahrradabstellplätze, ein Aufzug sowie ein jeweils eigenes Kellerabteil zur Verfügung.
In der hauseigenen Tiefgarage stehen 62 Stellplätze mit einem platzsparenden Stapelparksystem zur Anmietung bereit.
Die monatlichen Kosten inklusive Betriebskosten betragen:
- €101,81 brutto für einen unteren Stellplatz
- € 124,61 brutto für einen oberen Stellplatz
Als Servicepauschale verlangt die Hausverwaltung einmalig € 240,- brutto.
€ 822,22 pro Monat
Besichtigung buchenTeile diese Wohnung mit deinen Freund*innen:
Downloads
Lage
Direkt an der Donau im charmanten Stadtteil Urfahr – hier wohnst du naturnah und zentrumsnah zugleich. Kulturelle Highlights wie das Ars Electronica Center und das Lentos Kunstmuseum erreichst du bequem zu Fuß. Die nahegelegene Haltestelle "Rudolfstraße" sorgt für eine optimale Anbindung an den öffentlichen Verkehr.
Ideale Lage für Studierende: Ob Anton Bruckner Privatuniversität, KPU Linz, FH OÖ Campus Linz oder JKU – alle Hochschulen sind nur einen Katzensprung entfernt. Damit ist die Friedrichstraße 4 der perfekte Wohnort während Deines Studiums.
Die Straßenbahnlinien 1, 2, 3, 4 und 50 sowie die Buslinien 33A, 38, 102 und N82 verkehren zur Friedrichstraße 4; der nächstgelegene Zugbahnhof ist Linz Urfahr.
eugen!'s Tipp: Stadtwerkstatt - Café Strom & Kulturhub
Direkt neben dem Ars Electronica Center liegt ein echtes Urfahr-Original: die Stadtwerkstatt. Hier treffen sich Kunst, Kultur und kreative Köpfe. Egal ob Live-Konzerte, DJ-Sessions oder Ausstellungen – das Café Strom ist der Treffpunkt für alle, die es unkonventionell und lebendig mögen.
City Apartments Urfahr | Zentral. Kompakt. Modern. | Dein smarter Start in Linz
Die zentral gelegene Friedrichstraße 4 bietet modernes Wohnen in clever geplanten Stadt-Apartments. Die 151 Einheiten verteilen sich auf vier Stiegen und bieten dank Balkon oder Terrasse mit Garten in fast allen Wohnungen ein helles, freundliches Wohnambiente. Das 1995 errichtete Gebäude wurde 2020 umfassend saniert und erfüllt modernste Wohnstandards. Nur wenige Gehminuten entfernt liegt das Donau-Ufer – ideal zum Entspannen, Joggen oder Naturgenießen. Auch die Innenstadt, Universitäten, kulturelle Hotspots und öffentliche Verkehrsmittel sind gemütlich zu Fuß erreichbar. Perfekt für alle, die ruhig und dennoch mitten im Geschehen zuhause sein wollen! Highlights: - Kompakte, leistbare Wohnungen - Fast alle Einheiten mit Außenfläche - Lift und Waschküche im Haus - Abstellmöglichkeiten für Dein Fahrrad im Innenhof - Ready to connect – Kabel-TV & A1 in jeder Wohnung - Kellerabteile inklusive - Tiefgarage mit 62 PKW-Stellplätzen (Stapelparker) - Zentrale, beliebte Lage – Innenstadt, Natur und Kultur direkt vor der Tür
- Baujahr 1995
- Wohnungen 151
- Ort 4040 Linz
Häufig gestellte Fragen
Noch offene Fragen? eugen! ist da, um sie zu beantworten! Wenn du deine Frage hier oder bei unseren allgemeinen FAQ nicht findest, schreib uns an!
Das geht ganz einfach über unser Online-Terminbuchungstool. Den Link dazu findest du nach Anfrage direkt in deinem Exposé. Wähle dir aus den verfügbaren Terminfenstern den für dich passenden Slot aus. Besichtigungstermin vergessen unmöglich – Eugen’s Reminder erinnert euch daran!
Nach deiner Besichtigung, erhältst du eine persönliche Benachrichtigung und hast die Möglichkeit dein verbindliches Interesse zu zeigen. Damit wirst du automatisch zur Online-Bonitätsprüfung weitergeleitet. Nach Zustimmung der Vermieterin / des Vermieters unterschreiben beide Parteien den Mietvertrag elektronisch.