Margaretenstraße 119, Top 25, 1050 Wien, Margareten

Moderne 4-Zimmer-Gartenwohnung auf zwei Etagen - Nahe U4 Pilgramgasse | Innenhoflage | ab sofort verfügbar

Dein neues Zuhause in Margareten – urban, modern und komfortabel!

Erlebe das pulsierende Stadtleben in dieser modernen Maisonette-Wohnung im Hoftrakt eines Neubaus aus 2003. Die ruhige Lage kombiniert perfekt mit der unmittelbaren Nähe zur U4-Station Pilgramgasse, ideal für alle, die das urbane Leben lieben und dennoch einen Rückzugsort im Grünen schätzen.

Highlights im Überblick:

  • Erdgeschoss-Maisonette mit eigenem Garten
  • Sonnige Süd-Terrasse für entspannte Stunden
  • Hochwertige Küche mit Miele-Geräten
  • Neubau-Charakter mit zeitgemäßem Wohnkomfort
  • Lift, Kellerabteil & hauseigene Tiefgarage
  • Zentrale Lage mit perfekter Anbindung


Ein Zuhause, das urbanen Lifestyle mit privater Wohlfühl-Oase verbindet!

  • Objektnummer eugen-24-11906/4
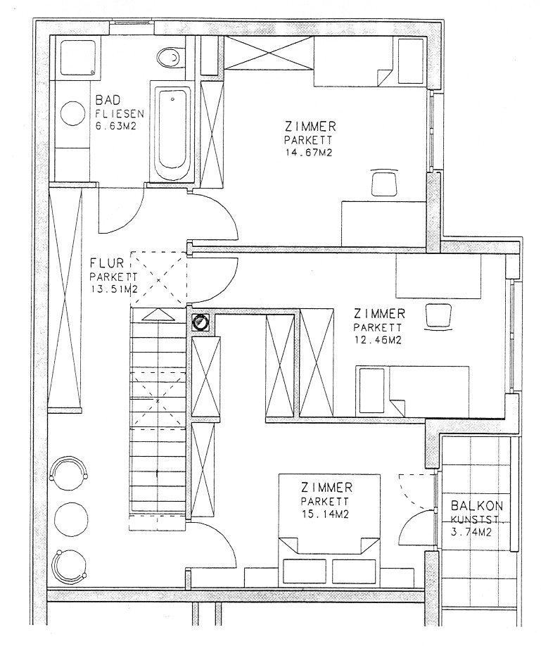
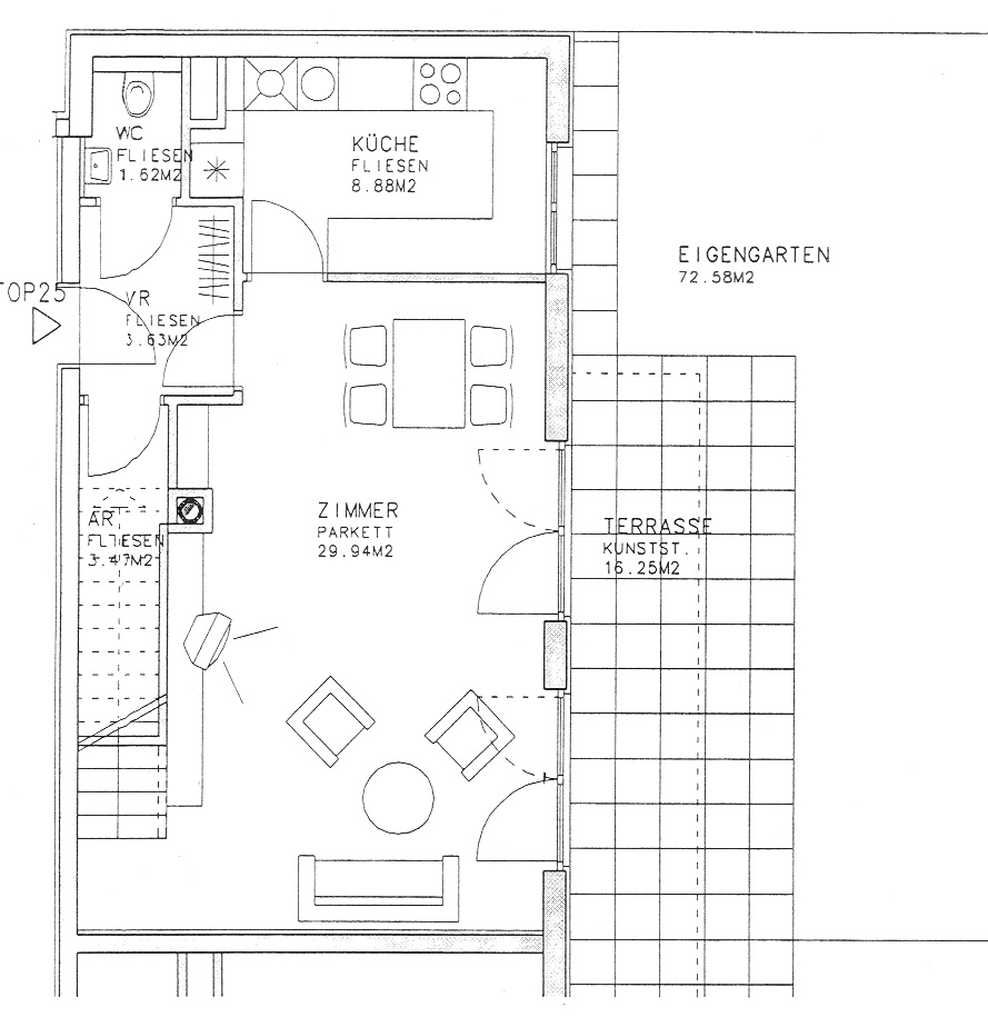
  • Wohnfläche 109,95 m²
  • Balkon 1 (3,74 m²)
  • Terrasse 1 (16,25 m²)
  • Garten 72,58 m²
  • Stockwerk EG
  • Anbindung U4, 12A, 14A, 59A, 6, 18
  • Zimmer 4
  • Badezimmer 1
  • WC 2
  • HWB 70,00 kWh/m²
  • Energieklasse C
  • Baujahr 2003
  • Heizung Zentralheizung
  • Befeuerung Fernwärme
  • Stellplätze 28
  • Aufzug ja
  • Barrierefrei nein
  • Möbliert Küche
  • Außenfläche 91 m²
  • Gesamtmiete € 2.499,00
  • Hauptmiete (inkl. USt) € 2.226,17
  • Betriebskosten (inkl. USt) € 272,83
  • Kaution € 7.497
  • Mindest-Haushaltseinkommen (netto) € 6.247,50
  • Verfügbar ab sofort
  • Mietdauer 5 Jahre
  • Provision Provisionsfrei
  • Aufzug
  • Keller
  • Fahrradraum
  • Kinderwagen­abstellraum
  • Abstellraum

Im Jahr 2003 erbaut, präsentiert sich das Gebäude in herausragendem Zustand und wird kontinuierlich gepflegt. Ein Aufzug erleichtert den Zugang zu den verschiedenen Etagen, während jedem Wohneinheit ein individuelles Kellerabteil zur Verfügung steht. Alle Wohnungen sind mit hochwertigen Einbauküchen ausgestattet, und einige bieten zusätzlich großzügige Außenbereiche.


Zusätzlich verfügt jede Einheit über ein eigenes Kellerabteil. Für die Mietvertragserstellung erhebt die Hausverwaltung eine einmalige Servicegebühr: € 210,-.

Das Gebäude bietet eine hauseigene Tiefgarage, in der bei Verfügbarkeit ein Garagenplatz angemietet werden kann. Die monatliche Miete beträgt € 110,- inkl. Betriebskosten und USt.
Für die Erstellung des Stellplatzmietvertrags erhebt die Hausverwaltung eine einmalige Servicegebühr: € 105,-

In der pulsierenden Margaretenstraße 119 befindet sich dieses Wohnhaus, das perfekt im Herzen von Margareten platziert ist. Hier kannst du eine ideale Lage mit einer Fülle von Annehmlichkeiten direkt vor deiner Tür genießen. Margareten ist bekannt für seine lebendige Atmosphäre, die von einer Vielzahl von Geschäften, Restaurants und Cafés geprägt ist. Hier hast du den Luxus, das belebte Stadtzentrum Wiens leicht zu erreichen. Die U-Bahn-Station Pilgramgasse ist nur einen Steinwurf entfernt und bietet eine direkte Verbindung zur U4. Darüber hinaus stehen dir verschiedene Busverbindungen in direkter Nähe zur Verfügung, um die Stadt problemlos zu erkunden.

eugen!'s Lieblingsplatz:
In nur ein paar Gehminuten findet man die Blockfabrik - eine Kletterhalle mitten im Herzen von Wien. Neben wöchentlich neuen Kletterrouten, findet man hier auch ein vegetarisches Bistro, sowie unterschiedliche Kletter- und Yogakurse.

Lage & Standort

Margaretenstraße 119, 1050 Wien, Margareten

Auf Google Maps ansehen

Dein neues Zuhause in Margareten - erleben das pulsierende Stadtleben! Dieser moderne Neubau von 2003 bietet zeitgemäßen Wohnkomfort, ist bequem mit einem Aufzug ausgestattet und liegt in unmittelbarer Nähe zur U4-Station Pilgramgasse. Highlights: - Zentrale Lage mit guter Anbindung - Neubau-Charakter - Lift und Keller - Hauseigene Tiefgarage

  • Baujahr 2003
  • Wohnungen 25
  • Ort 1050 Wien, Margareten
Mehr zum Projekt

Noch offene Fragen? eugen! ist da, um sie zu beantworten! Wenn du deine Frage hier oder bei unseren allgemeinen FAQ nicht findest, schreib uns an!

Das geht ganz einfach über unser Online-Terminbuchungstool. Den Link dazu findest du nach Anfrage direkt in deinem Exposé. Wähle dir aus den verfügbaren Terminfenstern den für dich passenden Slot aus. Besichtigungstermin vergessen unmöglich – Eugen’s Reminder erinnert euch daran!

Nach deiner Besichtigung, erhältst du eine persönliche Benachrichtigung und hast die Möglichkeit dein verbindliches Interesse zu zeigen. Damit wirst du automatisch zur Online-Bonitätsprüfung weitergeleitet. Nach Zustimmung der Vermieterin / des Vermieters unterschreiben beide Parteien den Mietvertrag elektronisch.