Friedrichstraße 4, Top 1.13, 4040 Linz
1-room apartment | 3m² loggia | Linz-Urfahr
Description
The centrally located Friedrichstraße 4 offers modern living in cleverly designed city apartments. The 151 units are spread over four staircases and, thanks to balconies or terraces with gardens in almost all apartments, offer a bright, friendly living environment. Built in 1995, the building was extensively renovated in 2020 and meets the latest living standards.
The banks of the Danube are just a few minutes' walk away – ideal for relaxing, jogging, or enjoying nature. The city center, universities, cultural hotspots, and public transportation are also within easy walking distance. Perfect for anyone who wants to live in a quiet location yet still be right in the middle of the action!
Highlights:
- 1-room apartment
- ground floor apartment
- 3m² loggia
- elevator and laundry room in the building
- storage space for your bike in the courtyard
- ready to connect – cable TV & A1 in every apartment
- basement storage units included
- underground parking garage with 62 parking spaces (stacked parking)
- central, popular location – city center, nature, and culture right on your doorstep
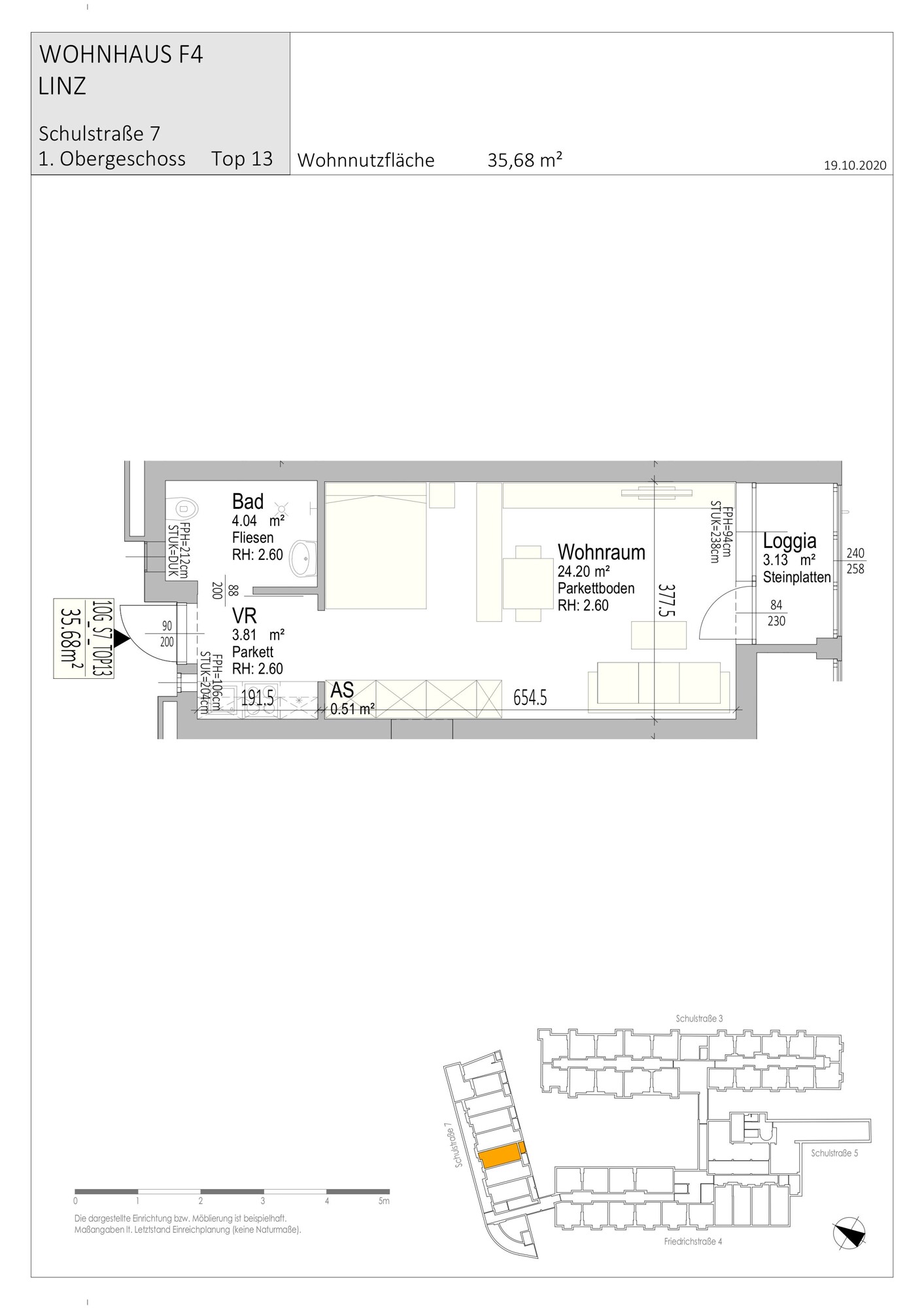
- Object number eugen-25-12683/41
- Living space 35,68 sqm
- Loggia 1 (3,13 sqm)
- Floor 1.OG
- Connection Straßenbahn 1, 2, 3, 4, 50 | Bus 33A, 38, N82 | Linz Urfahr Bahnhof
- Rooms 1
- Bathrooms 1
- Toilet 1
- EPC 51.10 kWh/sqm
- Energy class C
- Construction year 1995
- Heating District heating
- Lighting District heating
- Parking spaces 62
- Elevator Yes
- Barrier-free No
- Furnished Kitchen
- Outdoor space 3 sqm
- Total rent € 750.63
- Main rent (incl. VAT) € 604.20
- Operating costs (incl. VAT) € 146.43
- Deposit 3 BMM
- Minimum household income (net) € 1,876.58
- Available from 01.02.2026
- Rental duration 5 Jahre
- Commission Commission free
Special features
- Elevator
- Basement
- Bike room
- Stroller storage room
The advertisement shows sample images from comparable residential units in the building. At present, only one sample apartment can be viewed.
At Friedrichstraße 4, you will find the following mix of apartments:
- micro-apartments up to 30 m²
- compact apartments with 30–40 m²
- comfort units from 40 m²
The apartments are in very good, modern condition. The living areas are fitted with real oak parquet flooring, creating a warm, cozy atmosphere. The bathrooms feature timeless beige-gray porcelain stoneware tiles, which are both attractive and easy to clean. In stairwells 2, 3, and 4, all skylights are equipped with electrically operated sun blinds that provide effective protection from the sun and heat.
Almost all kitchens are functionally equipped and include a ceramic hob, oven, dishwasher, and a refrigerator with a built-in freezer. In smaller apartments under 30 m², the equipment may be more limited.
All residents have access to a communal laundry room, numerous bicycle parking spaces, an elevator, and their own basement storage compartment.
The building's underground garage has 62 parking spaces available for rent, featuring a space-saving stacking parking system.
The monthly costs, including operating costs, are:
- €106.80 gross for a lower parking space
- €129.60 gross for an upper parking space
The property management company charges a one-time service fee of €240 gross.
€ 750.63 monthly
Book a viewingShare this apartment with your friends:
Downloads
Location
Right on the Danube in the charming district of Urfahr – here you can live close to nature and close to the city center at the same time. Cultural highlights such as the Ars Electronica Center and the Lentos Art Museum are within easy walking distance. The nearby “Rudolfstraße” stop provides excellent public transport connections.
Ideal location for students: Whether Anton Bruckner Private University, KPU Linz, FH OÖ Campus Linz, or JKU—all universities are just a stone's throw away. This makes Friedrichstraße 4 the perfect place to live during your studies.
Tram lines 1, 2, 3, 4, and 50 as well as bus lines 33A, 38, 102, and N82 run to Friedrichstraße 4; the nearest train station is Linz Urfahr.
eugen!'s tip: Stadtwerkstatt – Café Strom & Kulturhub
Right next to the Ars Electronica Center is a true Urfahr original: the Stadtwerkstatt. This is where art, culture, and creative minds come together. Whether live concerts, DJ sessions, or exhibitions – Café Strom is the meeting place for everyone who likes things unconventional and lively.
City Apartments Urfahr| Central. Compact. Modern. | Your smart start in Linz
The centrally located Friedrichstraße 4 offers modern living in cleverly designed city apartments. The 151 units are spread over four staircases and, thanks to balconies or terraces with gardens in almost all apartments, offer a bright, friendly living environment. Built in 1995, the building was extensively renovated in 2020 and meets the latest living standards. The banks of the Danube are just a few minutes' walk away – ideal for relaxing, jogging, or enjoying nature. The city center, universities, cultural hotspots, and public transportation are also within easy walking distance. Perfect for anyone who wants to live in a quiet location yet still be right in the middle of the action! Highlights: - compact, affordable apartments - almost all units with outdoor space - elevator and laundry room in the building - storage space for your bike in the courtyard - ready to connect – cable TV & A1 in every apartment - basement storage units included - underground parking garage with 62 parking spaces (stacked parking) - central, popular location – city center, nature, and culture right on your doorstep
- Year of construction 1995
- Apartments 151
- Location 4040 Linz
Frequently asked questions
Still unanswered questions? eugen! is here to answer them! If you don't find your question here or at our general FAQ, just let us know!