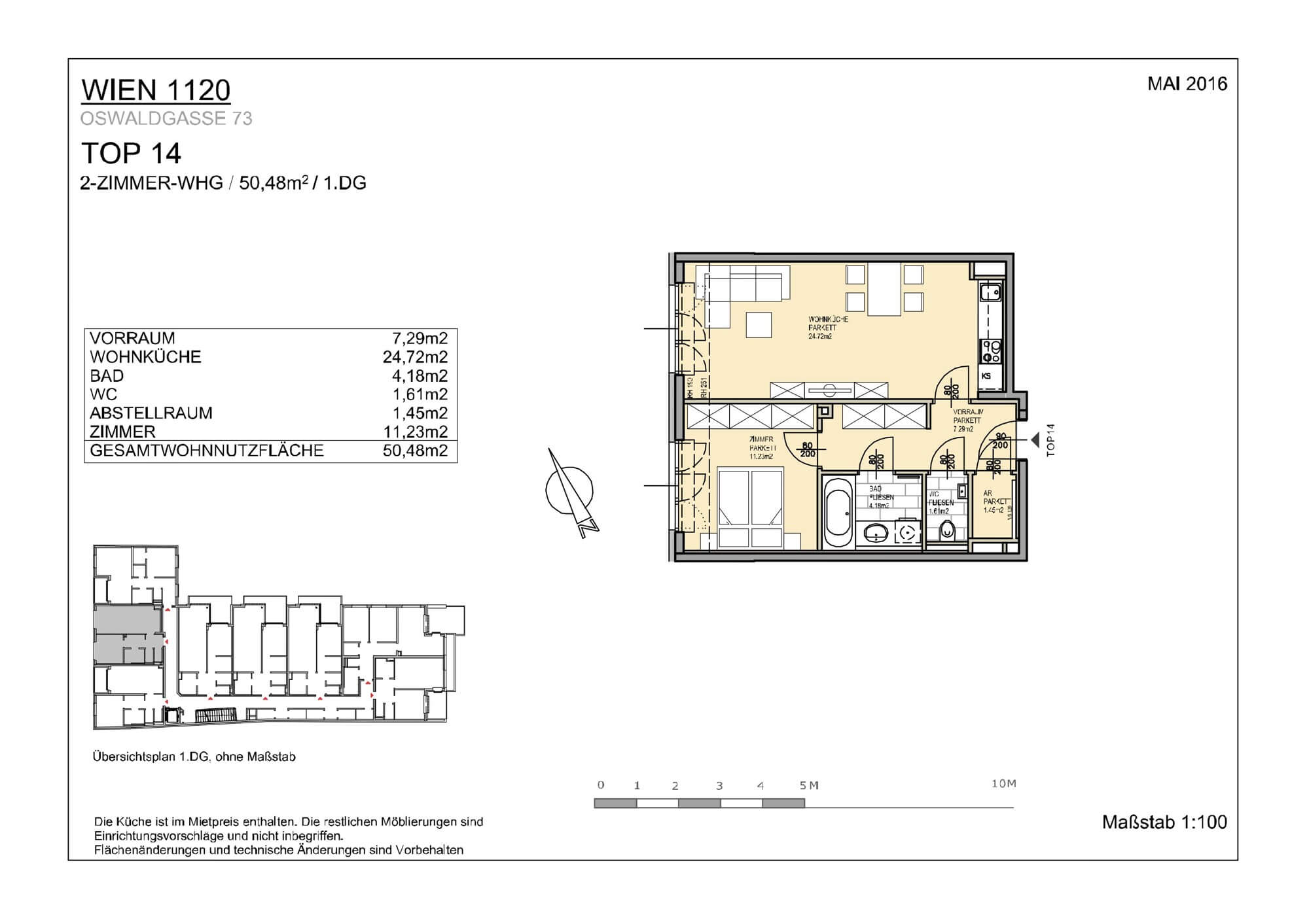
Oswaldgasse 73, Top 14, 1120 Wien, Meidling
1st floor | 1120 Meidling | 2-room apartment | Elevator available
Description
Oswaldgasse 73 is in very good condition and comprises a total of 24 residential units. The apartment building is located right next to a small church square, giving it a particularly quiet, almost rural atmosphere. Shopping facilities, schools, and public transportation (subway and commuter rail) are within easy walking distance.
Highlights:
- 2-room apartment on the 1st floor
- spacious entrance hall
- separate bathroom and toilet
- storage room in the apartment
- elevator available
- cable TV connection available
- district heating with underfloor heating
- cellar compartment included
- stroller and bicycle storage room
- Object number eugen-26-13014/1
- Living space 50,48 sqm
- Floor 1. DG
- Connection U6, 62, 26A, BB
- Rooms 2
- Bathrooms 1
- Toilet 1
- EPC 43.97 kWh/sqm
- Energy class B
- Construction year 0
- Heating District heating
- Lighting District heating
- Parking spaces No
- Elevator Yes
- Barrier-free No
- Furnished Kitchen
- Total rent € 1,135.00
- Main rent (incl. VAT) € 1,002.85
- Operating costs (incl. VAT) € 132.15
- Deposit 3 BMM
- Minimum household income (net) € 2,837.50
- Available from sofort
- Rental duration 5 Jahre
- Commission Commission free
Special features
- Elevator
- Basement
- Bike room
- Stroller storage room
The apartments in the building feature modern and well-maintained furnishings and spacious floor plans. New parquet floors, a well-equipped kitchen with all the essential appliances, and district heating with underfloor heating in all rooms ensure a high level of living comfort. In addition, there are cable TV connections, blinds on the windows, and TV connections in the living room and bedroom, complemented by practical ancillary rooms such as a basement and laundry room.
The property management company charges a one-time service fee of €155 gross.
€ 1,135.00 monthly
Book a viewingShare this apartment with your friends:
Downloads
Location
The location is appealing thanks to its quiet and pleasant atmosphere right next to a small church square, which gives the area an almost village-like character. At the same time, all the amenities you need for everyday life are within easy reach: a large Billa Plus supermarket is around a seven-minute walk away, and other shops such as Penny, Bipa, and a pharmacy are also in the immediate vicinity. Public transport connections are excellent, with the U6 (Schöpfwerk) and S-Bahn in Hetzendorf within walking distance, and an elementary school just around the corner.
eugen!'s tip: The Wienerberg boulder bar invites you to enjoy creative bouldering challenges for every level and a relaxed, feel-good atmosphere. Come by, climb your way out of everyday life, and then enjoy a drink at the bar.
Oswaldgasse 73 | Central, charming | Living in Meidling | Urban living with a feel-good atmosphere
Oswaldgasse 73 is in very good condition and comprises a total of 24 residential units. The apartment building is located right next to a small church square, giving it a particularly quiet, almost rural atmosphere. Shopping facilities, schools, and public transportation (subway and commuter rail) are within easy walking distance. Highlights: - elevator available - cable TV connection available - district heating with underfloor heating - cellar compartment included - stroller and bicycle storage room
- Year of construction 0
- Apartments 24
- Location 1120 Wien, Meidling
Frequently asked questions
Still unanswered questions? eugen! is here to answer them! If you don't find your question here or at our general FAQ, just let us know!